Allgemeine Informationen
Standort: Gildehaus
Baujahr: 1963
Wohnfläche: Geräumige 151 m²
Grundstücksfläche: 681 m²
Kaufpreis: 274.000 Euro
Merkmale des Hauses
Dieses wunderschöne freistehende Haus bietet viel Raum und Komfort, ideal für Familien, die ein neues Zuhause suchen.
Wohnräume
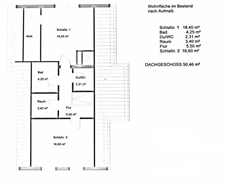
Anzahl der Schlafzimmer: 5 geräumige Schlafzimmer, perfekt für große Familien oder die Einrichtung eines Home-Office.
Badezimmer: 2
Es besteht die Möglichkeit, ein Badezimmer im Erdgeschoss zu realisieren, was zusätzlichen Komfort bietet.
Ein kleiner Keller, der zusätzlichen Stauraum bietet.
Hauswirtschaftsraum: Praktischer Hauswirtschaftsraum mit Anschlüssen für Waschmaschine und Trockner, ideal für Haushaltsaufgaben.
Standortvorteile
Das Haus liegt günstig nur 15 Autominuten von den Niederlanden entfernt, was es zu einer ausgezeichneten Wahl für Pendler oder Menschen macht, die regelmäßig die Grenze überqueren.
Außenbereich
Mit einem Grundstück von 681 m² bietet der Garten reichlich Platz zum Entspannen, Gärtnern oder Einrichten eines Spielbereichs für Kinder. Hier können Sie die Privatsphäre und die Ruhe des Landlebens genießen.
Dieses Haus in Gildehaus ist eine einzigartige Gelegenheit für diejenigen, die nach Raum, Komfort und einer hervorragenden Lage suchen. Kontaktieren Sie uns für weitere Informationen oder um eine Besichtigung zu vereinbaren. Ihr Traumhaus wartet auf Sie in Gildehaus!
Technische Angaben
- ImmoNr
- 82
Kategorie
- Objektart
- Haus
- Objekttyp
- Einfamilienhaus
- Nutzungsart
- Wohnen
- Vermarktungsart
- Kauf
Geografische Angaben
- PLZ
- 48455
- Ort
- Bad Bentheim / Gildehaus
- Land
- Deutschland
Flächen
- Wohnfläche
- ca. 151 m²
- Grundstücksgröße
- ca. 681 m²
- Anzahl Zimmer
- 8
- Anzahl Schlafzimmer
- 4
- Anzahl Badezimmer
- 2
- Anzahl sep. WC
- 1
- Anzahl Terrassen
- 1
Ausstattung
Terrasse
- Befeuerung
- Gas
- Etagenzahl
- 2
- Stellplätze
- 2 Freiplätze, 1 Garage
Preise
- Kaufpreis
- 274.000,00 €
- Außen-Provision
- 2,75 % von Kaufpreis Incl. 19% MwSt.
Beschreibung
Lage
Freistehendes Haus zu verkaufen in Gildehaus
Suchen Sie ein geräumiges und charmantes Zuhause in einer ruhigen Umgebung.
Dann könnte dieses freistehende Haus in Gildehaus genau das Richtige für Sie sein!
Suchen Sie ein geräumiges und charmantes Zuhause in einer ruhigen Umgebung.
Dann könnte dieses freistehende Haus in Gildehaus genau das Richtige für Sie sein!
Sonstige Angaben
ENERGIEAUSWEIS:
In anfrage
In anfrage
Energieausweis
A+
< 30
A
30 – 50
B
50 – 75
C
75 – 100
D
100 – 130
E
130 – 160
F
160 – 200
G
200 – 250
H
> 250
- Baujahr lt. Energieausweis
- 2000
- Endenergiebedarf
- 199,5 kWh/(m²a)
- Energieausweis
- Bedarfsausweis
- Energieeffizienzklasse
- F
- wesentlicher Energieträger
- Gas
Ihr Ansprechpartner
Herr Henk Walda
Kock van Benthem MaklerGmbH
- Tel.:
- 0049 (0)5922 777 073
- E-Mail:
- hw@kvbm.de
Apotheker-Drees-Strasse 1
48455 Bad Bentheim